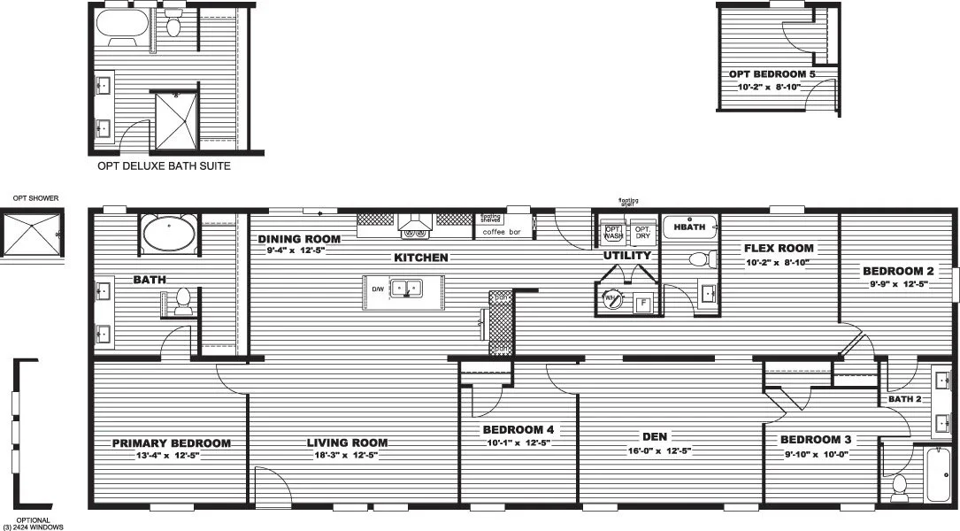
The Snowcap

  • 🏡 Spacious & Modern Living: Beautiful 5-bedroom, 2-bath home featuring a sleek exterior design with clean lines, durable finishes, and inviting curb appeal

  • 🌞 Bright Open-Concept Layout: Expansive living area flows seamlessly into the kitchen and dining space, highlighted by recessed lighting, neutral tones, and large windows that flood the home with natural light

  • 👩‍🍳 Stylish Kitchen Hub: Oversized island with seating, stainless steel appliances, modern range hood, ample cabinetry, and generous counter space—perfect for everyday meals or entertaining

  • Built-In Coffee Bar: Dedicated coffee nook with open shelving adds charm and functionality for morning routines or hosting guests

  • 🖥 Flexible Spaces for Any Lifestyle: Versatile den and flex room ideal for a home office, game room, study, or additional living space

  • 🛏 Private Primary Retreat: Spacious primary bedroom with a serene feel, complete with a spa-inspired ensuite featuring double vanities, soaking tub, walk-in shower, and abundant storage

  • 🛁 Comfort for Everyone: Well-appointed secondary bedrooms and a second full bath provide comfort and convenience for family or guests

  • 🧺 Everyday Ease: Centrally located utility room with washer/dryer connections keeps daily tasks simple and organized

  • 🌿 Indoor-Outdoor Enjoyment: Dining area opens to the backyard through sliding glass doors—perfect for gatherings, relaxation, or outdoor dining

Previous
Previous

The Cowboy 3 Bed 2 Bath ($160,000)

Next
Next

The Player 4 Bed 2 Bath ($157,000)